Details
-
Sizes 2000 - 25000 Sq. Ft.
-
Property Type Office On Lease in Gurgaon
-
Transaction Archive, On Rent
Description
maar Digital Greens is a premier commercial project located in Sector 61, Gurgaon, along the Golf Course Extension Road. This development by Emaar MGF is designed to cater to top-tier corporate entities, offering a mix of retail and office spaces.
Key Features of Emaar Digital Greens:
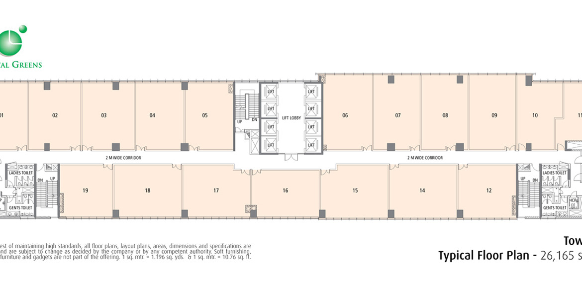
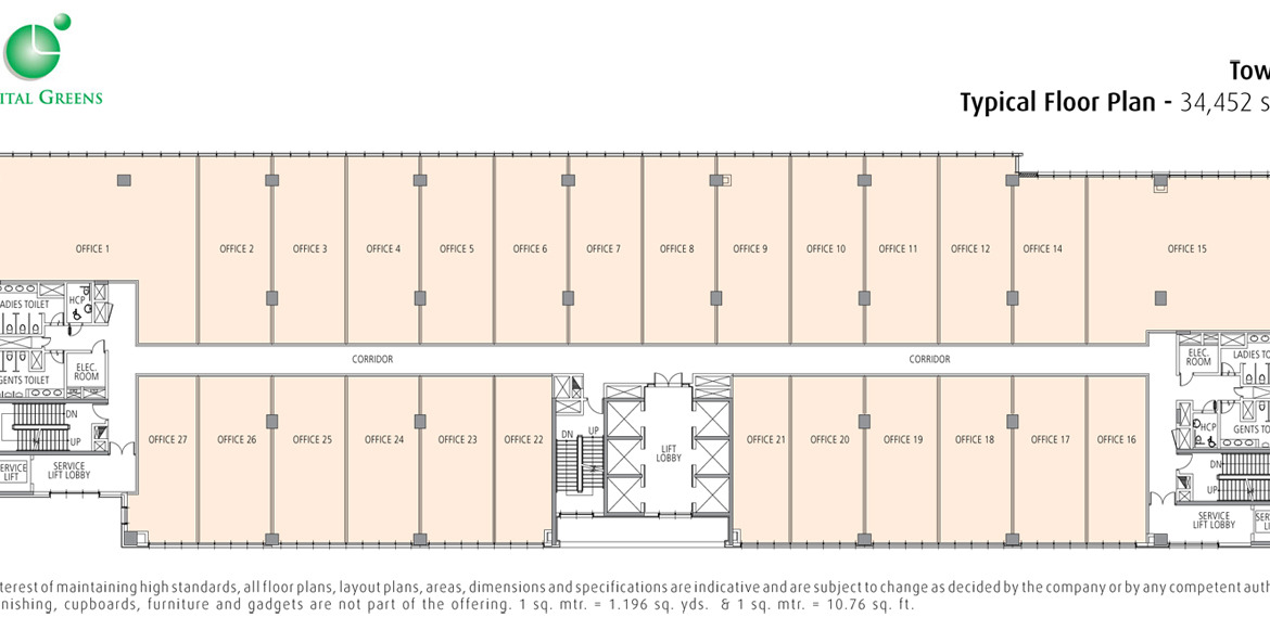
- Project Size: The project spans approximately 8.5 lakh square feet, divided into two towers—Tower A with around 3.5 lakh square feet and Tower B with 5 lakh square feet.
- Architecture: The design of Digital Greens follows contemporary international standards, with a focus on sustainability and high-quality finishes. The building is LEED certified, adhering to green building guidelines.
- Facilities: The complex is equipped with modern amenities, including fully air-conditioned office spaces, high-speed elevators, ample parking, 24/7 power backup, and state-of-the-art security systems.
- Location: Strategically positioned near major roads like the Golf Course Road and Southern Peripheral Road, the project offers excellent connectivity. It is just a short distance from the Sector 55-56 Rapid Metro Station and is surrounded by other high-end residential and commercial developments.
- Work Environment: Emaar Digital Greens provides a sophisticated work environment with spacious floor plates, a luxurious lobby, and well-designed public spaces, making it an attractive destination for businesses.
This project is ideal for companies seeking a modern and well-connected office space in one of Gurgaon’s most sought-after locations.
Emaar MGF Digital Greens sets a new benchmark for international business environments by offering a dynamic and vibrant atmosphere enriched with comprehensive amenities and robust business support services. The development is strategically located to provide easy access to residential, hospitality, and recreational facilities, ensuring a balanced work-life experience. It is designed to operate 24/7, featuring ample parking and professional property management to cater to the needs of modern businesses.
In its commitment to excellence, Emaar MGF Digital Greens adheres to best practices and corporate governance, consistently aligning with the highest global quality standards. The project integrates environmental responsibility into its core operations, focusing on pollution prevention and resource conservation. Continuous improvement in environmental performance is a priority, supported by ongoing employee education and training. Emaar MGF also emphasizes transparency and compliance, ensuring all stakeholders are informed of its commitment to sustainability and adherence to applicable laws and regulations.










